Selfbuild Application


応用編 Top

応用編 第3章 セルフビルドに最適な住宅モデル集 L

 

実際の施工にあたって

以上、「セルフビルドに最適な住宅モデル集」いかがでしたでしょうか。分割して建てることのできる住宅のバリエーションが意外と多いことに驚かれたことと思います。以下では、これらのプランをセルフビルドで実際に施工するにあたっての留意点というか、着目点についていくつか付記しておきたいと思います。

 

1) LDKを最初に建てる

当特集をご覧になって気づかれた方も多いと思いますが、ここで紹介したプランの多くには共通のパターンがあります。ひとつには、各家屋群をパブリックゾーンとプライベートゾーンに分けるという手法であり、効率的かつ合理的な生活空間の創出を図ることができます。また、平屋と2階建てを組み合わせることで、外観に変化や強調を与えることができることがお分かりいただけるでしょう。

また、多くのプランがリビングとダイニング、キッチン(LDK)の三つの隣接したスペースを持っているという点も共通点のひとつです。この組み合わせが本間取り図集の中にどのくらいあるかをみてみると、12プランのうちの8プランはこのパターンに適合するようです。

それぞれのプランにより各スペースの大きさや形状は異なりますが、標準的には、だいたい下図のようなサイズのものが多いようです。大きさとしては5m四方ほど、15畳ほどの大きさであり、初めてセルフビルドで建てるとすれば手頃な大きさといえるかもしれません。敷地にある程度の余裕がある場合には、試しにまずこのLDKユニットを建ててみて、自信がついてからその他の棟をだんだんと建て増ししていくというのは良い方法かもしれません。最終形状の選択肢が多いということは、それだけフレキシブルな計画が立てられるということであり、何かと試行錯誤の多いセルフビルドにおいては良い方法だと思います。以下には下図のLDKユニットを使って各プランの間取りを完成させた例を示しますので参考にしてみてください。

 

LDKの標準的大きさ

LDKユニットの各種プランへの適用

 

2) 水回りがある家屋を最初に建てる

上述のようにLDKユニットを最初に建てるという手法は、生まれてはじめてのセルフビルドのために自信がない場合には良き「試し台」になるほか、その後の増築計画をフレキシブルにするために有効な方法といえると思います。

しかし、水回り設備はキッチンだけですので、バスやトイレなどの設備は当然のことながらこのあとの増築部分に追加していかなくてはなりません。できればこれらの設備も最初に建てるユニット中に入れておけば、住みながら増築もできますし、増築の際の配管の接続に頭を悩ませる必要もないでしょう。

そこで、水回りのあるユニットを最初に建て、そこから四方へ増築していくプランのひとつを以下に紹介します。下図は、上述のLDKユニットと同サイズ(3.64×7.28m)のユニットを3つ組み合わせて、本文でも紹介したトップライト型の平屋住宅を建設するプランです。総床面積79.5m2の中サイズ住宅で、本文でも紹介しましたが、トップライトを設けることでリビングルームやダイニングルームに光を呼び込み、吹き抜け部分ができたことで視覚的にも広々とした空間が創出できます。間取りとしても和室と洋室を兼ね揃えていますから、大変使い易いものとなっています。片流れ屋根と切妻を組み合わせることで外観としても特徴のある優れたデザインとすることができました。

 

 

この住宅を分割して建てる場合の手順について考えてみましょう。ユニットは全部で3つありますが、このうちのユニットAに水回りのすべてを集中させます。各ユニットは開口部(窓やドア)がある部分を中心として接合して最終的な住宅としますが、最初に建てるユニットAは、それ単体でも住宅として機能させるため、すべての開口部に窓やドアを設置しておきます。比較的短期的に増築を行う場合にはこの上に外壁材を貼らず、窓やドア枠の回りにはシーリングをして雨水の浸入を防ぎます。2×4の外板として用いる構造用合板は非常に耐水性に優れたものですから、サッシ回りからの水の浸入を防ぐことができればある程度の期間は外壁材なしでもそのままにしておくことも不可能ではありません。

しかし、住みながら徐々に建て増しをする場合には、外壁材を貼り、雨水や外気の浸入を防ぐ必要があります。外壁材としては、サイディング材のような乾式材と漆喰やモルタルのような湿式材がありますが、乾式材のほうが剥がしやすいことはいうまでもありません。ユニットBやCを増築する場合には、接合部分の外壁材を剥がし、代わりに内装材を貼って仕上げます。取り外す外壁材は、最初から高価なものを用いず、ホームセンターなどで入手できる安価なトタン板などで代用することも可能です。

一方、ユニットAに取り付けてあった窓はユニットCの窓へと転用します。このまま取り付けておいて入り口ドア代わりに使うこともできますが、このプランではユニットCへ転用することを前提にユニットAとCの開口部のサイズは同じ大きさに設定してあります。ユニットBの玄関部に使用する玄関ドアも同様です。これも、ユニットAの玄関ドアとして使っていたものをユニットBに移設します。ユニットAの玄関ドアとしては、もっと安価なものを使用しておいて、ユニットBを増設する際に新たに購入しても良いでしょう。

このようにしてユニットBとユニットCを増築すれば広々とした空間を持つひとつの家を完成することができます。ユニットBとユニットCはどちらを先に増築することもできます。ユニットAを建てることで自信をつけた腕で、トップライト部を持つユニットCに挑戦しても良いでしょうし、直交するユニットBを先に建てて、ひとまず寝場所を確保するのも良いでしょう。場合によっては両方の増築を一度に行ってしまうこともできるでしょう。いずれの場合も最初に建てたユニットAに住みながらプランを練ってからはじめることができます。

 

 

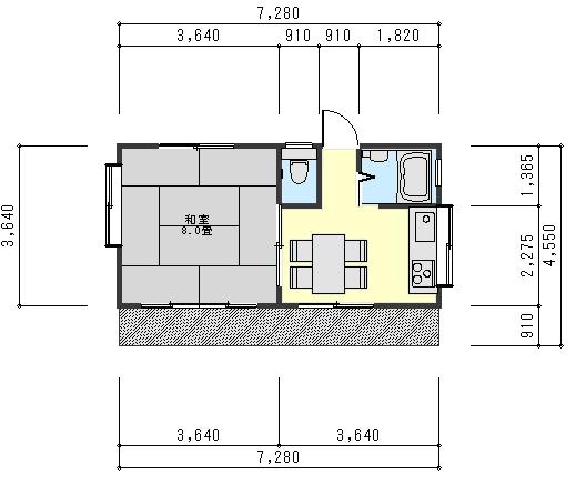
3)一戸建ての住宅として完成させる

上述のユニットAは、一戸建住宅としてしばらくの間住むためには、少々居住スペースが小さいのが難点です。このため、水回りのユニットをもっとコンパクトにまとめた上で更に戸建住宅として住みやすいものにしておくという手もあります。とりあえず居住空間としてもある程度満足できるものにし、しばらく住んで様子をみながら増築していくのです。増築の選択肢は、最初から計画しているものに比べて少なくなりますが、このユニットサイズは、縦横比が1:2に設定してありますので、本編で紹介した色々な平屋タイプの住宅として増築していく場合でも比較的対応がし易いといえると思います。

バス・トイレ・キッチンとも最近はユニット化が進んでいるため、最初のユニットに取り付けたものをあとから取り外すのも比較的容易です。増築部分により大きなバスやキッチンスペースを作ってここへ移設することも不可能ではありません。

住みながら増築していくことも考えてはいるものの、とりあえず完成した家が欲しいという方は一度検討されてはいかがでしょうか。

 

 

一戸建て住宅として完成させた例

 

 

このサイズのユニットは色々な形の増築に対応し易い       

 

- continue -